60843 SE Epic PlaceBend, OR 97702




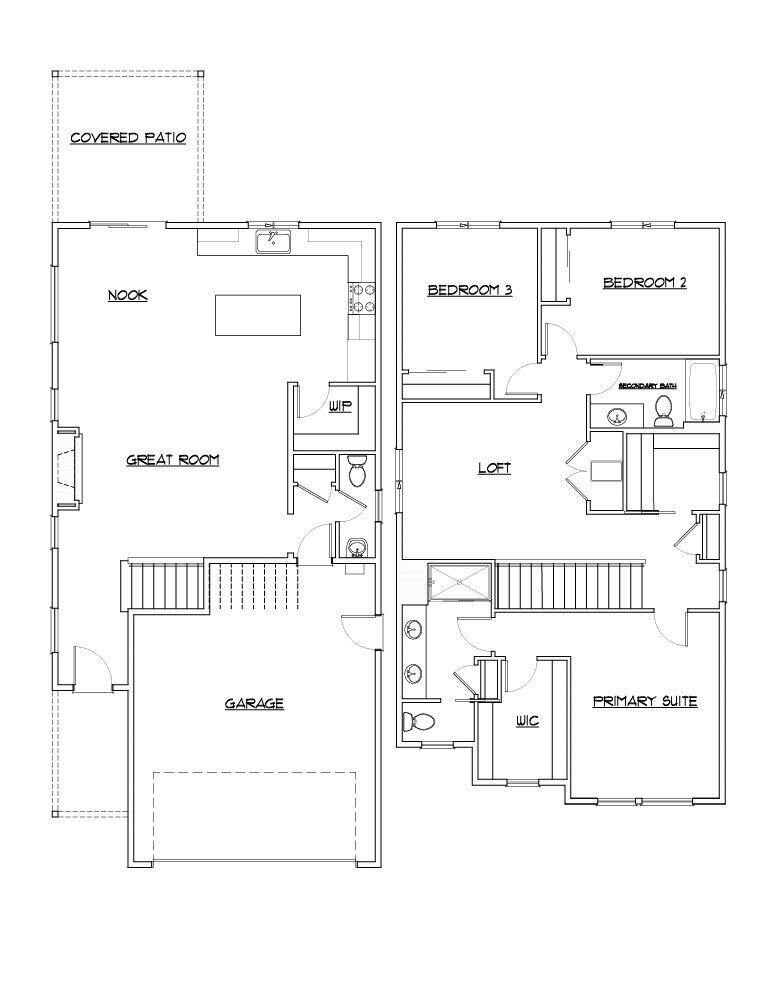
Easton Phase 3 - Homesite #186 - PRESALE OPPORTUNITY STARTING SOON - Live large in a new Sydney floorplan built by award winning Pahlisch Homes. This efficient and stylish home is set to start in July with an approximate 6 month buildtime. Interior highlights include 9' ceilings and, 8' tall solid core doors on main level, granite composite kitchen sink, quartz countertops, full-height kitchen backsplash, SS appliances, cooktop and wall oven, LVP flooring in main living areas, a tiled shower in the primary suite and much more. Additional features include a tankless water heater, air conditioning, full fencing & more. Located in Easton, a vibrant SE Bend community offering green spaces, pools, fitness facilities, and walkable amenities. Live where comfort meets lifestyle. Photos are of a similar model; floor plan, colors, and finishes may vary. Time to customize your upgrades and design selections from the ground up. Visit us at 60931 SE Ambassador Dr. open 11-5 daily for more detail
| 5 days ago | Listing first seen on site | |
| 5 days ago | Listing updated with changes from the MLS® |
© 2026 Oregon Datashare (KCAR | MLSCO | SOMLS). All rights reserved. The data relating to real estate for sale on this web site comes in part from the Internet Data Exchange Program of the Oregon Datashare. Real estate listings held by IDX Brokerage firms other than Pahlisch Real Estate, Inc. are marked with the Internet Data Exchange logo or the Internet Data Exchange thumbnail logo and detailed information about them includes the name of the listing Brokers. Information provided is for consumers' personal, non-commercial use and may not be used for any purpose other than to identify prospective properties the viewer may be interested in purchasing. The consumer will not copy, retransmit nor redistribute any of the content from this website. Information provided is deemed reliable, but not guaranteed. Data Services by Constellation Data Labs.
This content last updated on 2026-04-21 05:02 PM PDT. Some properties which appear for sale on this website may subsequently have sold or may no longer be available. Source: Oregon Datashare.
Did you know? You can invite friends and family to your search. They can join your search, rate and discuss listings with you.