51738 Jubilee Pine DrLa Pine, OR 97739




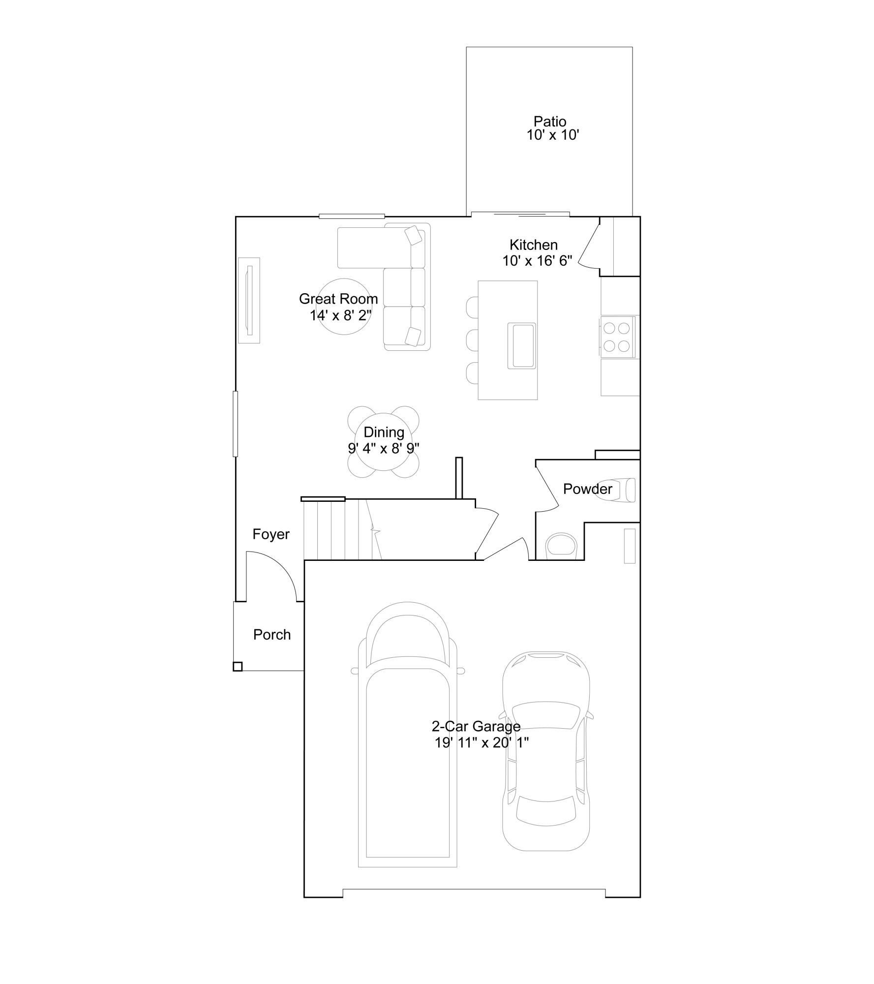
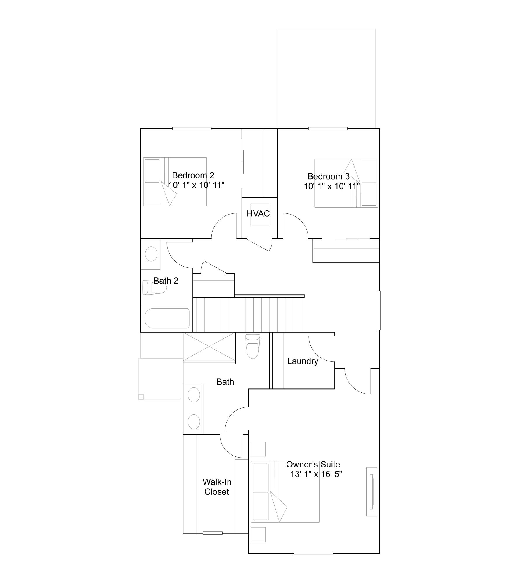
This new construction home is located at Reserve in the Pines, surrounded by year-round outdoor recreation with open spaces and adjacent to a community trail. The Olive plan provides two stories of flexible living space. The first floor features an open-concept layout connecting the kitchen, living, and dining areas, with a nearby patio for effortless indoor-outdoor living. Upstairs, all three bedrooms are thoughtfully positioned for privacy, including a luxurious primary suite with an en-suite bath, double vanity, and a generous walk-in closet. Interior highlights include quartz countertops, shaker-style cabinetry, and luxury vinyl plank flooring in the kitchen and bathrooms. This home also includes central AC, a refrigerator, washer and dryer, a xeriscaped front yard with a drip irrigation system, and blinds—all at no extra cost! Homesite #94. Expected completion: January 2026. Rendering is artist conception only. Photos are of a similar home, features and finishes will vary.
4 weeks ago | Listing first seen on site | |
4 weeks ago | Listing updated with changes from the MLS® |

© 2025 Oregon Datashare (KCAR | MLSCO | SOMLS). All rights reserved. The data relating to real estate for sale on this web site comes in part from the Internet Data Exchange Program of the Oregon Datashare. Real estate listings held by IDX Brokerage firms other than Lennar Sales Corp are marked with the Internet Data Exchange logo or the Internet Data Exchange thumbnail logo and detailed information about them includes the name of the listing Brokers. Information provided is for consumers' personal, non-commercial use and may not be used for any purpose other than to identify prospective properties the viewer may be interested in purchasing. The consumer will not copy, retransmit nor redistribute any of the content from this website. Information provided is deemed reliable, but not guaranteed. Data Services by Constellation Data Labs.
This content last updated on 2025-10-23 01:00 PM PDT. Some properties which appear for sale on this website may subsequently have sold or may no longer be available. Source: Oregon Datashare.
Did you know? You can invite friends and family to your search. They can join your search, rate and discuss listings with you.